Bezugsfertig Herbst 2025 -Energieeffiziente DHH in Bonn-Schweinheim–Ihr Familien-Zuhause der Zukunft

Bonn

Kaufpreis: € 1.098.500
5 3 2 194.00 m2
Verfügbar Ab: 01.11.2025
Objektnr Extern: 285
Objekttyp: Doppelhaushälfte
Kaufpreis: € 1.098.500,00
Nutzfläche: 30,00 m2
Wohnfläche: 194,00 m2
Grundstücksfläche: 335,00 m2
Baujahr: 2024
Zustand: Erstbezug
Etagen Zahl: 3
Anzahl Zimmer: 5
Anzahl Badezimmer: 2
Anzahl Schlafzimmer: 3
Anzahl Sep Wc: 1
Anzahl Terrassen: 1
Terrasse: Ja
Balkon: Ja
Anzahl Balkone: 2
Unterkellert: Ja
Energieausweistyp: Bedarfsausweis
Energieausweis gültig bis: 19.08.2034
Baujahr lt. Energieausweis: 2024
Endenergiebedarf: 23.00kwh/m2/p.a.
Warmwasser enthalten: Nein
Energieeffizienzklasse: A+
Heizungsart: -
Energieträger: Luftwärmepumpe
A
B
C
D
E
F
G
H

Willkommen in Ihrem neuen, energieeffizienten Zuhause im begehrten Bonner Stadtwald. Diese moderne Doppelhaushälfte vereint höchste Wohnqualität mit innovativen Technologien, die den Energieverbrauch minimieren und gleichzeitig höchsten Komfort bieten. Hier leben Sie nicht nur nachhaltig, sondern auch zukunftsorientiert. Das Gebäude wurde nach den neuesten Standards der Energieeffizienz errichtet, die niedrige Betriebskosten und eine hohe Umweltfreundlichkeit garantiert. Dank einer optimalen Dämmung, einer Luft-Wasser-Wärmepumpe und einer Photovoltaikanlage auf dem Dach, verbunden mit einem Batteriespeicher im Keller, wird der Energiebedarf des Hauses größtenteils aus erneuerbaren Quellen gedeckt. So profitieren Sie nicht nur von einem angenehmen Raumklima, sondern auch von geringen Heizkosten und einer minimalen CO₂-Bilanz. Abgerundet wird das Energiekonzept von einer Notstromsteuerung, die im Falle eines Black-outs die Versorgung einzelner, vordefinierter Stromquellen durch den Energiespeicher aufrecht erhalten. Durchdachte Architektur, hochwertige Materialien und eine moderne Ausstattung sorgen für ein komfortables Wohnen. Große Fensterfronten nach Süden ausgerichtet bringen viel Tageslicht in alle Räume und schaffen eine lichtdurchflutete Atmosphäre. Die großzügigen, offenen Grundrisse bieten viel Platz für individuelle Gestaltungsmöglichkeiten und ermöglichen eine flexible Nutzung der Wohnflächen. An der massiv errichteten Pkw-Garage befindet sich eine Wallbox, damit Ihrer Elektromobilität keine Grenzen gesetzt sind. Die Bilder zeigen Ausstattungen, teilweise als Sonderwunsch, die in der bereits verkauften anderen Doppelhaushälfte verbaut wurden. Sie haben die Möglichkeit, auf die Innenausstattung noch Einfluss zu nehmen (Bodenbeläge, Fliesen und Sanitärausstattung).

Das Neubauhaus befindet sich in einer ruhigen, grünen Lage im Stadtwald von Bonn – ideal für naturverbundene Stadtmenschen, die gleichzeitig eine gute Anbindung an das Bonner Stadtzentrum schätzen. Einkaufsmöglichkeiten, Schulen und öffentliche Verkehrsmittel sind in unmittelbarer Nähe, sodass Sie sowohl die Ruhe der Natur als auch die Vorzüge der Stadt in vollen Zügen genießen können. Nutzen Sie die Gelegenheit, Teil einer nachhaltigen Zukunft zu werden und sichern Sie sich Ihr neues Zuhause im Grünen. Wir freuen uns, Ihnen dieses einzigartige Neubauhaus präsentieren zu dürfen – ein Ort, an dem Energieeffizienz und Lebensqualität Hand in Hand gehen. Ihr neues Zuhause in Bonn-Stadtwald wartet auf Sie!

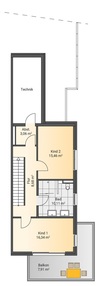
Keine zusätzliche Käuferprovision, Auftraggeber ist der Eigentümer. Alle Angaben sind nach bestem Wissen und Gewissen gemacht. Irrtum und Zwischenverkauf vorbehalten. Die Flörken & Schulz Immobilien GmbH haftet nicht für Irrtümer oder Schriftfehler. Sämtliche Informationen dieses Exposés basieren auf Informationen und Unterlagen, die uns durch den Eigentümer oder Dritten überlassen wurden und durch uns geprüft wurden. Im Vorfeld der konkreten Erwerbsüberlegung erhalten Sie sämtliche zu Grunde gelegten Unterlagen. Wir empfehlen die ausführliche Prüfung. Die in den Grundrissen eingezeichneten Möbel stellen lediglich ein Möblierungsbeispiel dar und sind nicht Teil dieses Angebotes, sofern nicht im Text "Ausstattung" ausdrücklich darauf hingewiesen wird.

´

Kontakt

Cookies akzeptieren

Diese Website verwendet Cookies, um Ihnen die bestmögliche Erfahrung auf unserer Website zu bieten. Bitte akzeptieren Sie unsere Cookie-Richtlinien, um fortzufahren.